Cumming Planning Board Recommends Approval for Large Rezoning
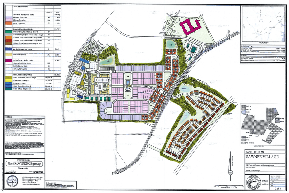
The Cumming planning board on December 23 recommended approval of a rezoning request for more than 150 acres between Pilgrim Mill Road and Atlanta Highway, advancing the Sawnee Village Pilgrim Mill Road project to the Cumming City Council for final action. The decision matters because the development footprint and intended uses will shape traffic patterns, infrastructure demands, and land use in a rapidly growing section of Forsyth County.

The Cumming planning board voted on December 23 to recommend approval of a rezoning request covering more than 150 acres of land located between Pilgrim Mill Road and Atlanta Highway. The proposal, referred to in filings as the Sawnee Village Pilgrim Mill Road project, will now move to the Cumming City Council for final consideration and a binding decision.
During the planning board discussion members reviewed the project footprint and the intended uses for the site. Board members and staff focused significant attention on infrastructure capacity and traffic impacts tied to the scale of the proposed change. Planners noted the need for coordination on road improvements, stormwater management, and utility expansions before development proceeds. The planning board recommendation does not authorize construction, it advances the rezoning request to the council where final conditions and approvals will be set.
The site sits along two arterial corridors that carry commuters and local traffic to schools, shopping, and employment centers. Changes in land use at this location could increase peak hour congestion on Pilgrim Mill Road and Atlanta Highway, and could require intersection upgrades, turn lanes, or signal adjustments to maintain safe traffic flow. Utilities including water and sewer capacity will also be central to implementing any development tied to the rezoning.

For local residents the project raises practical questions about neighborhood character, property values, tax revenue, and public services. New development can expand the tax base and support additional amenities, but it can also increase demands on schools, emergency services, and roads. The planning board discussion emphasized the importance of clear commitments on mitigation measures and the sequencing of infrastructure work.
The next step is for the Cumming City Council to consider the planning board recommendation and public input before issuing a final ruling. Residents who want to follow the process should monitor council agendas and participate in public comment opportunities. City leaders will be tasked with balancing growth management, infrastructure investment, and community priorities as they deliberate on this sizable rezoning request.
Sources:
Know something we missed? Have a correction or additional information?
Submit a Tip
